Форумчанка Livadi вместе со своим мужем долгое время жили в съемной квартире и только лишь могли мечтать о собственном жилье. Но всему приходит конец. Благодаря совету своего товарища, они приобрели небольшой участок, где и было принято решение построить дом собственными силами. Самостоятельно разработали проект и чертеж дома. Здание планировалось использовать под временное жилье, а в дальнейшем – как баню или гостевой домик. Был подробно разработан план сооружения и проработан интерьер. В итоге удалось построить небольшой домик 6х4 с бюджетом 6000$ в срок чуть больше, чем за месяц.
Содержание
- Возведение фундамента дома
- Цокольное перекрытие дома
- Монтаж стен каркаса
- Обшивка стен каркаса
- Установка окон
- Крыша, стропильная система
- Завершающий этап: внутренняя отделка дома
- Основные материалы и инструменты, которые использовались в процессе строительства
- Вспомогательные конструкции для строительства дома
- Итог
Этапы строительства
- Обустройство фундамента. Каркасные постройки имеют небольшой вес. Для них подойдут не усиленные фундаменты.
- Монтаж каркаса. Как говорилось выше, каркас может быть металлическим или деревянным. Металлический каркас считается более надежным. Однако он повышает стоимость строительства. Кроме того, металлический каркас требует более прочного фундамента. Со стороны улицы каркас обшивается доской или вагонкой.

- Устройство пола. Он состоит из нескольких слоев. Первый слой – рубероид. Он укладывается на фундамент. В некоторых случаях может понадобиться дополнительный строительный уровень. Между лагами укладывается утеплитель. И только потом кладется черновой или чистовой отделочный материал. Это могут быть доски, линолеум, паркет и пр.
- Монтаж стен. Предпочтительнее строить их на черновом покрытии пола. При их возведении нужно учитывать расположение окон. Они занимают примерно 18% стенового покрытия. Что касается окон, то лучше выбрать двойное остекление. Оно повысит тепло- и звукоизоляционные свойства дома.
- Сооружение крыши. Крышу нужно монтировать сразу же после возведения стен. В противном случае их могут повредить атмосферные осадки. Кровельный материал выбирается в зависимости от пожеланий заказчика.
Возведение фундамента дома
Весь процесс строительства планировалось совершить собственными силами, однако выполнение фундамента все-таки доверили строительной фирме. Строить нужно было быстро. Каркас решили делать на винтовых сваях, поскольку они имеют ряд преимуществ:
- Такой фундамент делается на любом виде грунта, в данном случае участок неухоженный, непаханый, растет дерн;
- Строительство занимает немного времени – поставили фундамент за один день;
- Строительство на винтовых сваях обойдется значительно дешевле традиционного фундамента;
- Сваи можно близко прикручивать к инженерным коммуникациям;
- Такой фундамент простоит более 80 лет, а если его залить бетоном – намного дольше.
Сотрудники фирмы доставили материал и установили винтовые сваи. Цена за фундамент с работой составила 1100$.
На заметку: Даже если вы абсолютно уверенны в качестве материалов, которые использовались для построения фундамента, его не стоит оставлять на зиму без нагрузок. Существует вероятность того, что сваи вытеснит из грунта и фундамент может искривиться.
Наружные материалы для отделочных работ, которые применяются для каркасного дома
Именно то, каким материалом будет обшит дачный домик дело совершенно индивидуальное. Так как отделочные материалы в их разнообразии в настоящее время различаются между собой как по внешним показателям, так и по цене. Рассмотрим подробнее материалы, которые чаще всего используются для обшивки каркасных домов:
- Блок-Хаус. Данный отделочный материал можно назвать самым популярным, который используется в настоящее время. По внешнему виду он напоминает облицовку деревянными брусьями. Что касается положительных качеств то можно отметить его экологичность, простоту и произведение монтажных работ за короткий период времени.
Каркасный дачный дом, облицованный блок-хаусом
- Пластиковый сайдинг. Положительным качеством данного материала является то, что он имеет невысокую стоимость, монтаж материала очень прост, времени на монтажные работы уйдёт не много. Помимо этого пластиковый сайдинг имеет очень много цветовых вариаций. Что же касается отрицательных качеств, то данный материал горюч, готовый вариант выглядит довольно просто, будет хорошо смотреться только на маленьком дачном домике, так как для массивных зданий его использовать просто нелепо.
Облицовка дачного домика сайдингом
- Кирпич или же декоративный камень. Данный вариант наружной отделки займёт очень много времени, так как монтаж данного материала – очень трудоёмкий процесс. Но за то каменная облицовка сможет просто великолепно защитить каркасное основание дома от внешних факторов, но для такой облицовки просто необходим вентиляционный зазор. Что же касается недостатков то их целая масса: высокая стоимость материала, продолжительный процесс монтажа, при необходимости сложный демонтаж, необходимо наличие крепкого фундамента. Положительные качества: довольно красивый внешний вид, хорошая защита стен он внешнего воздействия и погодных условий, данный материал не горит.
Облицовка дачного домика камнем
- Штукатурка. Как бы это не звучало странно, но такой вариант отделки может прекрасно подойти не только для кирпичных построек. В настоящий момент, данный отделочный материал стал настолько разнообразен, что приобрёл множество самых разных фактур. Теперь каждый может индивидуально подобрать для себя что-то особенное. Положительные качества такого отделочного материала как штукатурка: он не горит, хорошие теплоизоляционные свойства, красивый внешний вид. Отрицательные качества: плохая паропроницаемость, для облицовки данным материалом нужны некоторые навыки.
Внешняя отделка дома декоративной штукатуркой
- Панели, изготовленные из пенополистирола. Данный материал в принципе относится к недорогим. Такие панели имеют большую площадь и собой могут быть своего рода имитацией кирпичной кладки. Положительные качества: монтаж проводится в максимально короткие сроки, небольшой вес. Что же касается отрицательных качеств, то существенных минусов – нет.
Отделка фасада дачного домика панелями пенополистирола
Цокольное перекрытие дома
Каркасное строительство своими руками, как известно, обычно производят по технологии «платформа». Однако было принято решение не следовать данному совету, поскольку существовала вероятность, что утеплитель вымокнет, если пойдет дождь. Так и решили делать.
После того, как подготовили фундамент, наступила очередь монтажа обвязки и лагов дома. Аккуратно выложили доски для обвязки размером 150х50 см и обработали древесину антисептиком (в данном случае – Сенеж красный огнебио). По чертежу собрали обвязку. Прикрепили с помощью нейлера ершистыми, покрытыми клеем, гвоздями длинной 0,9 см. Делали все по уровню, диагонали сошлись идеально. В итоге, получилась обвязка высотой 15 см. Весь процесс создания обвязки занял около двух дней.
Строго по центру обвязки (вдоль здания) разместили несущую балку. Ее функция – поддерживать половые лаги. После этого следует нанести на весь брус антисептик.
Поверх обвязки прибили доски на расстоянии 60 см друг от друга. Был набит брус150х50х600 см, исполняющего роль чернового пола. В образованные ячейки уложили два слоя пенопласта – первый слой шириной 5 см, второй — 10 см, который запенили по краям и перекрыли досками 50х300 см.
Совет: Следует делать чуть большие размеры отверстия в обвязке, иначе придется делать развальцовку.
Варианты проектов каркасных домов
Рассмотрим несколько проектов каркасного дома.
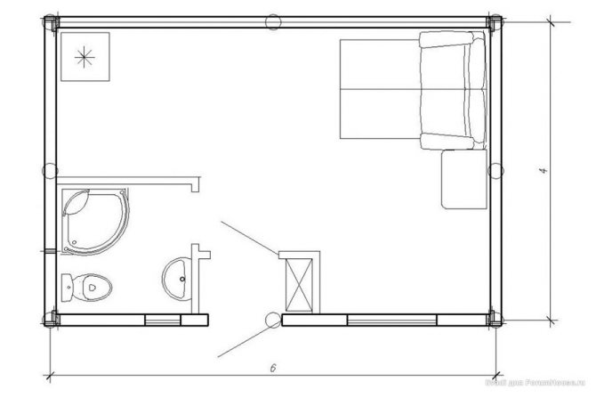
Первый вариант имеет жилую площадь 10,72 кв.м, а общая площадь составляет 34,7 кв. м. Дом одноэтажный с мансардой. Внизу располагается кухня, которая совмещена с прихожей, одна комната и лестница, ведущая в мансарду. Внешние размеры дома составляют шесть на четыре метра.
Проект каркасного дома 6х4. Фото
Второй проект имеет общую площадь в 44,35 кв. м и жилую площадь – 13,63 кв. м. Его внешние размеры составляют шесть на пять метров. Дом имеет кухню-прихожую площадью 11,25 кв. м, комнату и мансарду. При входе в дом располагается небольшое крыльцо с крышей, оберегающей от осадков. Пол первого этажа и мансарда дополнительно утепляются материалами Knauf. Черновой пол выполнен из ОСП.
Проект каркасного дома 6х5 с мансардой. Фото
Третий проект каркасного дома обладает жилой площадью 37,24 кв. м. При этом общая площадь составляет 72.7 кв. м. Дом имеет два этажа. На первом располагается гостиная. Кроме того там находится кухня, холл и кладовая. Вместо кладовой может быть обустроен санузел. На втором этаже располагаются комната и спальня. Вход в спальню осуществляется через комнату, т.е. она является проходной.
Проект каркасного дома 6х8 с мансардой. Фото
Четвертый проект – одноэтажный каркасный дом с мансардой, длина которого составляет 9м, а ширина – 6. Жилая площадь дома – 49,17 кв.м. Общая площадь – 68,51 кв. м. На первом этаже находятся большая и маленькая комнаты. В большой располагается лестница, ведущая в мансарду. Кроме того, на первом этаже находятся небольшой холл, санузел и кухня. Комната мансарды занимает половину площади, а вторая половина представляет собой так называемый «второй свет» над большой комнатой первого этажа.
Готовый проект каркасного дома 6х9 с мансардой. Фото
Пятый проект представляет собой совсем небольшой одноэтажный дачный домик, жилая площадь которого составляет 9,95 кв. м, общая площадь – 16, 95 кв. м, а размеры 5 на 4 метра. Планировка дома предельно простая. Внутри есть кухня, маленький коридор и жилая комната.
Проект каркасного дома 5х4. Фото одноэтажного дома
Шестой проект – каркасный дом с мансардой. Жилая площадь его составляет 49,53 кв. м, а общая – 87,14 кв. м. На первом этаже находятся две комнаты, холл, кладовая и кухня. В мансардном пространстве находится непосредственно мансарда и еще одна комната.
Седьмой проект – дом с жилой площадью 46,46кв. м и общей – 86.05 кв. м. На первом этаже располагается гостиная, просторный холл с лестницей, кухня и санузел. В мансардном этаже также имеется просторный коридор, по бокам от которого находятся две комнаты.
Проект каркасного дома 6х9 с мансардой. Фото
Восьмой проект представлен домом с жилой площадью 56,22 кв. м, общей площадью 84,96 кв. м. На первом этаже находятся гостиная и еще комната, коридор, санузел и кухня. В мансарде имеется холл, одна маленькая комната и две относительно просторные.
Готовый проект каркасного дома 6х9 с мансардой. Фото
Монтаж стен каркаса
Совет: Древесину для возведения стен необходимо выбирать не более 15% влажности.
Собрали и подняли стены достаточно быстро. Решили сделать сборку стенок каркаса в горизонтальном положении на подготовленном полу, поскольку существует вероятность столкнуться с проблемой неточного расчета в чертежах.
Прямо на полу и собирали будущие стены дома. Необходимо учесть, что плита должна заходить на верхнюю и нижнюю обвязку минимум на 5 см, поэтому высоту стойки следует выбрать от 2,6 метра.
Когда установка стен закончена, рекомендуется проверить их уровень с помощью шнура сделать это можно следующим образом: натянуть шнур от одного угла к другому. Если все равно присутствуют отклонения, стены нужно вдавливать с той стороны, с которой необходимо выровнять. После окончательного выравнивания стен следует прибить укосины.
На заметку: Чтобы не тратить ценное время на выравнивание стен и подпиливание стоек разной длины, следует несколько раз все внимательно отмерить.
Для перекрытий использовали клееные балки. Они выдерживают более высокую нагрузку, что дает возможность увеличить шаг между лагами. Между лагами перекрытия вставили распорки.
Важные правила установки и эксплуатации печного оборудования
Если печь установлена правильно, если ее форма и размер соответствует типу строения, зимой будет тепло внутри даже в двухэтажном доме. Когда на втором этаже прохладно, жильцы часто закрывают его и переживают сильные морозы внизу, на первом этаже.
Фундамент для печи заливается отдельно от фундамента основного дома Источник a.d-cd.net
Обшивка стен каркаса
Использовалась наружная обшивка листами OSB 9 мм, этого достаточно для обеспечения необходимой жесткости. Нижние листы устанавливали с земли, а иногда задействовали самодельные козлы, а для установки верхних листов использовали леса. Крепили листы с помощью винтовых гвоздей длиной 50-60 мм на расстоянии 1,5 см.
Совет: Чтобы не отсчитывать постоянно необходимый зазор между листами OSB, нужно вживить в стойки каркаса два гвоздя, сверху положить лист. Таким образом, получается зазор нужного, 3 мм, размера.
После обшивки покрасили края краской, чтобы не разбухали от дождей.
Совет: Листы OSB являются отличной ветрозащитой, но все равно следует побеспокоиться о минимальной гидроизоляции во избежание вздутия материала.
Фасад обмотали ветрозащитной пленкой, вставили двери, купленные заранее.
Установка окон
Окна, как и двери, вставляли после обмотки фасада дома пленкой. Для оконных и дверных проемов вырезы заблаговременно не делали. Применили следующую технологию: пленку нужно аккуратно надрезать и загнуть концы внутрь проема, закрепить степлером. Далее вставить по уровню оконный блок и запенить швы. После высыхания монтажной пены аккуратно убрать лишнее. Таким образом, исключается вероятность попадания влаги между проемом и переплетом окна.
Возведение каркаса будущего дома
Каркас для дачного домика можно изготовить из самых различных материалов. Но если дачный домик строится исключительно собственными силами, то самым оптимальным вариантом будет выбрать дерево для изготовления каркаса. Строительство каркаса начинается, конечно же, с пола, но с самого начала необходимо произвести нижнюю обвязку.
Подготовительные работы для изготовления каркаса
Деревянные брусья, имеющие размер 150х150 мм следует укладывать на предварительно заготовленные металлические пластины, которые крепятся на столбиках. Перед тем как закрепить нужно на пластины поместить рубероид в несколько слоёв. Внутренние доски, которые находятся в обвязке, следует соединить между собой при помощи 120 мм шурупов, а вот для досок средней и нижней обвязки лучше всего использовать 100 мм шурупы. После того как данная манипуляция будет полностью завершена следует верхнюю часть идеально выровнять при этом использовать электрический рубанок.
Внимание! Обязательно следует проверять ровность нижней обвязки, так как именно её неровности могут быть первой причиной нарушения геометрии целого дома.
Нижняя обвязка
После этого следует при помощи пилы или же электрического лобзика сделать пазы, которые будут предназначаться для вертикальных стоек в углах и в самой обвязке для произведения монтажа лаг. Ширина, которая будет между лагами, должна быть соответственной ширине, что имеет утеплитель, используемый для напольного покрытия. Если в проекте будущего дома есть установка печи или же тяжелого камина, то следует между лагами делать меньшее расстояние. В процессе работы лаги следует укладывать в пазы и хорошо закрепить к самой обвязке и столбам фундамента.
Установка лаг
В поперечном периметре лаг, а также к нижней части следует прикрепить доску или же брус, который будет иметь сечение 40х40 мм. Для чего это делается? Для того чтобы обустроить в доме черновой пол.
Монтаж чернового пола на лагах
На уже уложенные доски следует прикрепить лист фанеры нужного размера, монтаж его осуществляется при помощи саморезов. Сверху монтируется гидроизоляционный слой и утеплитель.
Важно! Укладка теплоизоляции должна производиться таким образом, чтобы ни в коем случае не оставалось даже малейших зазоров.
Швы между отдельными деталями нужно проклеить строительным скотчем. Вся готовая поверхность укрывается пленкой, которую следует зафиксировать к лагам степлером. Поверх готового теплоизоляционного покрытия уложить доску размерами 40х10, которую предварительно обрабатывают средством для защиты дерева от гниения. На заключительном этапе следует произвести укладку чистого пола.
Укладка фанеры на лаги
В процессе строительства наилучшим вариантом будет использование фанерной доски примерно 5 сантиметровой толщины. На такое готовое основание можно уже производить укладку любого подравшегося напольного покрытия. Все материалы, которые будут использованы в процессе монтажа пола предварительно обязательно должны быть обработаны антисептическим средством. После того как работа с полом будет окончена можно приступать к строительству самого каркаса стен.
Рис. 20 Напольные покрытия, используемые для пола
В уже готовой нижней обвязке следует в подготовленные пазы произвести крепление стоек. Вертикаль нужно строго проверять в процессе работы при помощи уровня. Каждую стойку необходимо гвоздями прибивать к стойке пола. Помимо этого для поддержания стоек используются укосины которые после того как первый этаж полностью готов попросту убирают.
Каркас будущего дома на стадии строительства
После окончания работ со стойками следует использовать перемычки. В качестве них применяется брус 40х40 см. Его следует установить в пазы и закрепить гвоздями. По завершению данного действия можно начинать непосредственную обшивку стен фанерными листами при этом оставляя пространство для оконных и дверных проёмов. Для совершения верхней обвязки используется такой же брус, как и для нижней.
Обшивка стен
Крыша, стропильная система
Установка стропильной системы
Следующий этап строительства каркасного дома своими руками – крыша. Макет крыши был тщательно проработан, его и взяли за основу строительства. Для этого дома был выбран каркас с несущей коньковой фермой. На данном этапе самое главное – верно установить конек, тогда смонтировать изготовленные по шаблону стропила будет легко. Важно учесть, что ширина конька должна быть не меньше, чем длина опоры стропила.
Были установлены стропила 150х50 под уклоном 20 градусов. К коньковой балке стропила лучше крепить с помощью металлических уголков.
Заметка: Образец стропилины следует сделать один и каждую следующую деталь отмерять только по этому образцу, чтобы избежать погрешностей.
Монтаж крыши
Чтобы улучшить вентиляцию помещения, сделали продухи под коньком и верхний вентиляционный зазор размером 50х50 мм в кровельной конструкции (конробрешетка).
Совет: Вне зависимости от того, будете ли утеплять крышу или нет, в ней нужно обязательно уложить гидроизоляцию и обустроить два вентиляционных зазора высотой 2-4 см.
Поскольку чердак не предусматривался как жилое помещение, то с утеплением и отоплением особо не разбирались. Была применена ветро-влагозащитная пленка вместо мембраны, поэтому сделали обязательный зазор. Решили утеплить кровлю роквулом 1,5 см.
Во время закрепления обрешетки следует обеспечить вылет за крайнюю стропилину приблизительно на 20-50 см. Когда обрешетка закреплена, лишнее необходимо срезать.
Совет: Во избежание непредвиденных ситуаций, следует сразу максимально надежно крепить все детали крыши. Таким образом, будет обеспечена прочность и жесткость всей конструкции, вне зависимости от непредвиденных погодных условий.
Крышу дома покрыли металлочерепицей, поскольку она идеально подходит для двухскатной крыши – предусмотрен минимальный расход материала.
Особенности расчета эффективности печного оборудования и выбора его разновидности
Чтобы потом печью было удобно пользоваться, необходимо еще на этапе строительства составить проект и грамотно распланировать внутреннее пространство. Важно учесть абсолютно все моменты: расположение печи, ее вид, высоту потолков, наличие дымоходов, размещение других функциональных предметов.
Чертежи печек – инструкция к их сборке Источник warmandcozy.ru
Выбор формы печи и ее размещение во многом зависит от площади обогрева, от числа жилых комнат, от этажности сооружения, типа материала, из которого возводится жилье и само оборудование. Берется во внимание и степень изоляции стен, сезонность проживания, наличие (или отсутствие) другого альтернативного источника тепла.
Размер и форма печи зависит от размеров жилого пространства Источник yandex.net
Печники используют формулу, по которой рассчитывается объем печной установки. Один квадратный ее метр способен отапливать до тридцати квадратов жилого пространства (если за окном -25 ºС). Когда температура воздуха за окном понижается, эффективность отопления падает. Поэтому так важно при проведении расчетов учитывать средние показатели термометра зимой в данном конкретном регионе.
Карта зимних температур Источник wiki.ars-vine.ru
Виды печей
Традиционная русская печь с большой лежанкой плохо подходит для отопления маленьких дачных коттеджей. Самая маленькая занимает 2,5 м². Если поставить такое оборудование, планировка дома 6 на 6 с печкой станет настоящей головоломкой.
Традиционный вариант изготовления с лежанкой плохо подходит для малогабаритных домов Источник yandex.net
Для отопления компактного жилья больше подходит голландка. Она имеет простую конструкцию, работает по противоточному принципу. У голландок разные формы: круглые, треугольные, многогранные. Это позволяет выбирать наиболее подходящий для себя вариант исполнения.
Старая голландка в усадьбе Лапшанга Источник fsd.multiurok.ru
Смотрите также: Каталог проектов домов с печкой
Его установка поможет экономить жилую площадь (отпадет необходимость выделять место для отдельной котельной). Если еще отказаться от тамбура в прихожей и кладовки, получится на одном уровне уместить и спальню (8 м²), и гостиную (14-16 м²), и кухню (10-12 м²), и небольшой сантехнический узел. Чертеж может меняться в зависимости от пожеланий хозяев, но главное – поставить голландку в центр.
Двухэтажная печь «шведка» помогает отапливать и первый, и второй этаж Источник yandex.net
Завершающий этап: внутренняя отделка дома
Для максимальной пароизоляции дома и герметичного ввода коммуникаций использовалась пленка, которая предназначена для того, чтобы предотвратить попадание влаги внутрь дома, а пар из дома должен легко выходить. Также подразумевается, что пленка защитит дом от продувания, особенно там, где соединены обвязки и стойки. Стандартно пленка имеет ширину 1,5 м, легко крепится степлером и очень прочная на разрыв. Однако прикрепили ее скотчем.
Совет: Стыки и дыры в пленочной пароизоляции лучше заделывать битумно-каучуковым герметиком для кровель, поскольку скотч крепиться непрочно.
Положили полы, утеплили стены и потолок.
Сделали перегородку тамбура, ввели в дом электричество, сделали внутреннюю обрешетку и положили гипсокартон. Положили на пол линолеум OSB-3 9мм — для поддержки утеплителя снизу.
Основные материалы и инструменты, которые использовались в процессе строительства
- Винтовые сваи;
- Роквул 1,5 см для утепления кровли;
- Доски 150х50 м;
- Антисептик для обработки всех деревянных покрытий Сенеж красный огнебио;
- Ершенные гвозди 90 мм;
- Винтовые гвозди 50-60 мм;
- Краска для обшивки;
- Металлочерепица;
- Пленка для фасада и пароизоляции дома;
- Окна и двери;
- Гипсокартон;
- Были наняты работники строительной фирмы для установки фасада;
- OSB 18,3 мм (черновой пол) и 9 мм (обшивка стен и крыши);
- Пенопласт для чернового пола;
Проекты и планировка дома 4х6
Деревянный дом 4х6 с мансардным этажом и балконом Источник dom-steny.ru
Форменная крыша дома позволит увеличить пространство верхней комнаты Источник dom-steny.ru
При постройке каркасного дома необходимо наличие различных временных конструкций. Для закрепления пленок и обшивки каркаса листами OSB использовались самодельные леса, козел, а также деревянная лестница. Леса, козлы и сделать лестницу своими руками совсем не сложно.
Плюсы каркасных домов
Благодаря современным технологиям каркасные дома ни в чем не уступают традиционным вариантам из бревен, бетона или кирпича. Они обладают необходимым уровнем прочности и надежности, достаточно долговечны.
Среди преимуществ каркасных зданий следует отметить быстрый процесс возведения и относительно низкую стоимость процесса.
Отделку можно выполнять в любое время года. Все поверхности такого дома получаются ровными, что существенно облегчает процесс отделки.
Поскольку здание легкое, то на фундаменте для каркасного дома можно сэкономить. Массивное основание не требуется, можно выбрать простые в обустройстве, легкие варианты.
Теплопроводность стен у такого типа домов низкая. Благодаря этому помещения быстро прогреваются даже холодной зимой. Летом же высокая теплоизоляция защищает от излишней жары, препятствуя перегреву.
Чтобы сделать каркасный дом пожаробезопасным, деревянные элементы обрабатывают специальными пропитками. Также используются материалы, обладающие устойчивостью к возгоранию.
Стены каркасного дома паропроницаемые, что обеспечивает вентиляцию без активной теплопотери.
Итог
Всего за полтора месяца удалось возвести фундамент, сделать полноценную коробку дома, утеплить стены и пол. При этом, вся работа (за исключением фасада) производилась своими силами, без привлечения наемных рабочих. ПО подобной технологии легко сторить и другие постройки, например, хозблок своими руками. На строительство каркасного дома своими руками 6х4, за исключением внешней обшивки дома, потрачено около 6000$.
По материалам Forumhouse
Видео описание
Чертежи конструкции Грум-Грижимайло Источник bani-i-sauni.ru
Как грамотно распорядиться внутренним пространством
Планировка дома 6 на 8 с печкой или коттеджа меньшего размера зависит от места расположения печного оборудования. Согласно СНиП оно должно размещаться строго посередине сооружения. Варочная поверхность при этом разворачивается в сторону кухни, а каменная сторона в сторону жилых комнат.
Схема подключения печи с водяным контуром Источник dachniy-ugolok.ru
Печь у стены устанавливается только в том случае, если предусматривается монтаж водяного контура. Для этого теплообменник помещается внутрь камеры, там, где сгорает топливо. К нему присоединяются две трубы. Одна из них обеспечит подачу теплоносителя, другая его возврат для повторного обогрева.
Отопление на два этажа Источник static.tildacdn.com
Есть проекты двухэтажных домов с печным оборудованием. В них все тяжелые части (фундамент, основной корпус с лежанкой с варочной поверхностью и с духовкой) располагается на первом этаже. Наверху присутствует часть дымохода и отопительный щиток. В зданиях, имеющих большую этажность, следует планировать обустройство закрытых котельных.
Открытая студия с печью посередине Источник yandex.net
Стандартная планировка дома 6 на 7 с одноэтажной печкой может производиться с делением на отдельные жилые комнаты. Принцип организации пространства остается прежним: отопительное оборудование посередине. Перегородки возводятся согласно схеме, представленной на следующем фото.
Принцип организации пространства с межкомнатными перегородками Источник yandex.net/
При таком раскладе можно организовать очаг в каждой комнате, однако наличие одного центрального узла все же предпочтительнее (это поможет значительно сэкономить расход топлива). Вместо отдельных очагов несложно сформировать фальшь камины, предусмотрев небольшое углубление в корпусе печи. Такой ход позволит украсить комнату, сделать ее более декоративной, а также увеличить отдачу тепла.
Фальшь камины на обратной стороне печи Источник izrazec.by
Удачной считается планировка одноэтажного дома 6 на 8 с печкой и с одной спальней, при которой обогревательное оборудование с центра сдвигается чуть в сторону, ближе к прихожей. Прямо за ним располагается сантехнический узел. Перед этими комнаты остается место для организации гостиной, совмещенной с кухней и спальней.
Удобная планировка дома 6 на 8 Источник archmasters.ru
Планировка с двумя спальнями тоже имеет место быть. Печь в этом случае лучше располагать в простенке между зоной ночного отдыха и гостиной. В ее сторону разворачивается топка. Перед ней организовывается прихожая и сантехнический узел. Они не отапливаются. И если при этом не предусматривается установка альтернативного обогрева, придется продумать возведение системы воздуховода.
Печь с топкой в гостиную Источник yandex.net



