Требования к толщине
При разработке технической документации, посвященной требованиям к бетонным стенам, учитывались параметры прочности:
- на сжатие;
- при изгибе;
- на устойчивость.
При этом во внимание брался коэффициент теплопроводимости относительно бетонных стен. Это основные условия для расчетов
Но также необходимо учитывать дополнительные данные.
Тип перегородок из бетона
Как правило, ориентируются на зимнюю пору.
И если морозы на местности не опускаются ниже 20 градусов по Цельсию, то для стены достаточно толщины в 250 мм.
А с каждым десятком градусов к глубине прибавляется еще 100 мм. Так при уличной температуре в -40°С толщина бетонной стены уже должна быть не меньше 450 мм.
Наличие армирования
Как правило, все конструкции из бетона выполняют при участии металлического каркаса. В строительстве это называется армированием. Оно нужно для повышения прочности и надежности сооружения. Стены с арматурой внутри намного крепче, чем залитые из одного раствора.
Но для защиты металлического прута от коррозии и возможных механических воздействий необходима прослойка из бетона:
- 20 мм в сухих и закрытых помещениях;
- 25 мм при повышенной влажности;
- 30 мм на улице;
- 40 мм на поверхности земли или под ней.
Местоположение
О толщине наружных стен было сказано выше. Стены внутри помещения делятся на несущие, которые помогают распределять нагрузку от плит перекрытия и просто перегородки. В первом случае используют готовые железобетонные конструкции, толщина которых колеблется от 120 до 200 мм.
Простая перегородка имеет стандартную толщину в 80 мм. Если используют самодельную монолитную заливку, то разрешено увеличить размер до 100 мм.
Назначение
Перегородки из бетона возводятся не только в жилых домах.
Одно из – погреб, выступающий в роли овощехранилища. При оборудовании подземного помещения в расчет берутся грунтовые воды.
Если они стоят низко и грунт сухой, то достаточно 150 мм для толщины стен. Но при влажной земле размер увеличивается до 250 мм. Иначе, когда при промерзании нагрузка на поверхность увеличится, а стена может не выдержать и разрушиться. Но в обоих случаях обязательно применяется вертикальное армирование.
Но поскольку сооружение постоянно испытывает повышенную нагрузку из-за находящейся в нем воды, толщина стен не должна быть меньше 200 мм. Делать перегородки толще 250 мм нецелесообразно.
Для колодцев используются специальные железобетонные кольца. Толщина в таких конструкциях колеблется от 70 до 120 мм.
Конструкции перекрытия
Когда необходимо установить перекрытия между этажами, то сделать это можно двумя способами. В первом случае заливаются монолитные полы, которые и выполняют роль перемычки. Толщина плиты должна быть не меньше 150 мм.
Но можно воспользоваться уже готовыми стандартными конструкциями. Пустотелые железобетонные плиты с армированием имеют толщину 90 мм. Этого вполне достаточно для перекрытий между этажами. Поскольку в отличие от самодельной плиты, заводские панели сделаны по всем нормам ГОСТ и СНиП.
Район строительства
Способ возведения стен путем их заливки из бетона разрешен к применению повсеместно. Даже в районах с повышенной сейсмической опасностью
И при строительстве берется во внимание лишь возможная температура окружающей среды. Об изменениях толщины стен при повышении морозов было сказано выше
Тип фундамента
При заливке ленточного фундамента из бетона нужно принимать во внимание, что его толщина не может быть меньше глубины несущих стен. Но, как правило, размеры основы превышают эти параметры
Поэтому, зная требования к будущим стенам, будет нетрудно залить необходимый фундамент.
Но существует расчетная формула, которая более четко позволяет узнать размеры:
Расшифровка обозначений:
- М – вес всех строительных элементов;
- П – полезный вес;
- С – нагрузка от снега;
- В – сила ветра.
Все точные данные можно найти в СНиП 2.01.07-85.
Тип почвы
Приемлемыми считаются только мало пучащиеся грунты. Поэтому из песчаных почв необходимо отбросить мелкозернистые и пылеватые.
Они крайне непригодные для любого строительства. По этой же причине избегают и торфянистых грунтов.
Показатель ГСОП и сопротивление теплопередаче
Расчет необходимого объема
Выполнение расчета нужного количества панелей лучше всего доверить специалисту. Это связано с тем, что теплопроводность материала, определяемая маркировкой напрямую влияет на оптимальную толщину стены. При этом, для проведения расчетов стенового пирога нужно будет воспользоваться показателями λ для каждого типа плиты из таблиц ГОСТов.
После изучения таблиц, с помощью коэффициента теплопроводности определяют другой К – теплового сопротивления конструкции. Для этого используется формула:
Полученное значение помогает в определении толщины стены и энергоэффективности, показатель которой нужно будет перемножить с площадью планируемой постройки, где учитываются все типы стен, в том числе, и перегородочные.
В расчетах при определении площади, помимо толщины используются важные величины: длина и ширина готовых изделий. Можно также воспользоваться услугами онлайн-калькулятора.
Особо стоит обратить внимание на упаковку изделий по их номинальному количеству. Для удобства многие производители на упаковках (от 10 шт.) указывают примерный расход материала на 1 м3, и 1 м2
Это намного упрощает расчеты, так как можно будет использовать только основные показатели и планируемую площадь, которые нужно будет перемножать между собой.
Какой дом лучше, монолит или панельный
Для начала разберемся, что значит монолитный дом. Это здание, построенное путем заливания бетонной смеси в подготовленную опалубку, внутри которой расположен арматурный каркас. При этом каждый последующий элемент соединяется с предыдущим без стыковочных швов.
Также есть еще одно понятие. Кирпично-монолитный дом – что это? Отличие кирпично-монолитного дома от просто монолитного состоит в том, что в первом типе здания наружные стены здания дополнительно обкладываются кирпичом.
Пройдемся по основным свойствам, которыми характеризуется жилищное строительство.
Цена
Для потенциального покупателя эта характеристика является наиболее важной при выборе типа дома. И «панелька» тут выделяется с лучшей стороны. И даже если стоимость дома из монолита не сильно отличается от стоимости панельного дома, то на этапе ремонта и отделки квартиры будущему хозяину «монолитной» жилплощади придется потратить немалую сумму
И даже если стоимость дома из монолита не сильно отличается от стоимости панельного дома, то на этапе ремонта и отделки квартиры будущему хозяину «монолитной» жилплощади придется потратить немалую сумму.
Скорость. Панельные дома строятся почти в 3 раза быстрее, чем монолитные.
Панельный дом, по сути, создается на заводе, и по частям перевозится на место строительства. Монолитный же возводится непосредственно на стройплощадке. Тут на скорость возведения влияет множество внешних факторов. Погодные условия играют тут немалую роль. Например, при отрицательных температурах бетон совсем не схватывается, и поэтому вести строительство становится невозможным. Приходится или подогревать бетонную смесь, что снижает ее качество, или вводить специальные противоморозные добавки, что значительно влияет на стоимость, или замораживать строительство в холодный период, что увеличивает время возведения здания.
Внешний вид. Вот по этому пункту монолитное домостроение занимает лидирующую позицию. «Монолит» не ограничивает фантазию архитекторов как в выборе фасадного решения, так и при планировке квартир.
Панельные дома характеризуются однообразием форм, шаблонными фасадами и стандартными планировочными решениями. Квартиры в панельном здании, в основном, одно- и двухкомнатные, небольшого метража и со скучной планировкой.
Усадка. Вопрос, садится ли монолитный дом, является актуальным для многих потенциальных собственников квартир. Ведь специалисты зачастую советуют не делать сразу серьезный ремонт в новостройке, а подождать год-два, ведь из-за усадки дома свежеположенная плитка может потрескаться и отвалиться, гипсокартон также пойдет трещинами, а штукатурка и вовсе станет сыпаться кусками.
Монолитный дом поддается усадке менее других типов домов, так как за счет цельной конструкции усадка происходит равномерно.
Для того, чтобы у вас сложилось объективное мнение, определим, какой дом лучше, монолит или кирпич.
Особенности их производства
Стоимость 1 м2 панельного коттеджа без учёта инженерного оборудования и отделки стартует от 20 тыс. руб., что сопоставимо с ценой постройки из газосиликатных блоков.
Материалом для наружных стен дома могут служить традиционные для высотного строительства трёхслойные железобетонные панели с эффективным утеплителем, изготовленные согласно ГОСТ 31310-2015.
Наружный и внутренний слои такой панели выполняются из тяжёлого бетона с гранитным наполнителем и стальной арматурой класса А500. Наружный и внутренний ж/б слои соединяют друг с другом с помощью диагональных связей из нержавеющей стали или железобетона.
Доставку панелей осуществляют специальным транспортом (панелевозом), а разгрузку — мощным автокраном, для установки которого на выносные опоры требуется ровная площадка, свободная от построек и растений.
Выбор автокрана зависит от массы стеновых панелей и расстояния, на которое их нужно переместить. Как правило, процесс установки одной панели занимает 15–20 мин, а монтаж основной ограждающей конструкции первого этажа — один-два дня

При этом одновременно с наружными стенами возводят и внутренние несущие перегородки

Временные регулируемые подкосы надёжно крепятся к фундаменту и панелям с помощью анкеров
Строительные материалыБыстровозводимый дом: обзор технологии строительства из крупноформатных панелей
Виды армирования
Кирпичная перегородка в деревянной бане, как и в помещении любого другого назначения, должна армироваться. В зависимости от расположения элементов, такое укрепление может быть:
- вертикальным;
- продольным;
- поперечным.
В последнем случае в кирпичную перегородку закладывается сетка. Решетку можно приобрести или изготовить самостоятельно. Для этого используются прутья, которые соединяются между собой по принципу сварки или с помощью проволоки. Сторона ячеек не должно быть больше 120 мм. Увеличивать размер самой сетки слишком сильно тоже не нужно, так как это снизит прочность перегородки из кирпича.
Для того чтобы защитить арматуру, ее предварительно помещают в цементный раствор, что увеличит толщину прутка, а также ширину шва, которая может составить 14 мм. Перегородки, возводимые в 2; 1,5 или полкирпича, должны подвергаться армированию через каждые 4 ряда.
Даже если перегородка имеет толщину в два кирпича, но эксплуатация конструкции ведется в регионе, где присутствует сейсмическая опасность, внутреннее армирование следует осуществлять вертикально или продольно. Укрепление стены по последнему методу может осуществляться снаружи или внутри конструкции.
От чего зависит стоимость работ по возведению стен?
- размеры дома;
- используемые материалы;
- количество перегородок;
- количество этажей;
- сроков строительства;
- наличие крыльца, террасы, окон и дверей.
Чтобы подрядчику посчитать, сколько нужно заплатить клиенту за монтаж, он первоначально высчитывает площадь стен. Для этого берут длину и ширину каждой стены, перемножают и складывают.
Обязательно учитывается наличие оконных и дверных проемов, так как это дополнительные работы по измерению, распилу плиты. Дополнительно суммируется площадь каждого этажа с учетом выступающих элементов – террас, эркеров, навесов и веранд.
При подсчете стоимости учитывают и площадь внутренних перегородок. Исходя из общей специфики и сложности проекта, подрядчик называет окончательную сумму и сроки строительства. Нередко это время от 1 до 3 месяцев в зависимости от размеров дома и комплектации.
Сколько стоит монтаж и сборка за м2?
Стоимость монтажа СИП-панелей будет также варьироваться в зависимости от комплектации. В среднем в России все подрядчики предлагают несколько видов комплектаций дома.
| Наименование комплектации | Стоимость за 1 квадратный метр, руб |
| Домокомплект или эконом | От 5500 |
| Стандарт | От 12000 |
| Комфорт | От 15500 |
- Пакет «Домокомплект» подразумевает минимальный набор материалов и работы. Например, рабочие выгонят коробку помещения, но фундамент под нее должен быть уже готовым. Они также сделают обшивку панелями и кровлю, но отделочными работами будут заниматься уже сами владельцы или нанимать других людей.
- В комплектации «Стандарт» строительство каркасного дома начинается с возведения фундамента, затем рабочие устанавливают каркас из деревянного бруса, обшивают его панелями и делают кровлю. Все работы, включая разгрузку материала, происходят на участке и входят в сумму.
- Комплектация «Комфорт» означает строительство дома из СИП-панелей с учетом установки окон и дверей, отделки фасада и цоколя, установки водосточной системы. Также есть просто вариант приобрести весь комплект панелей и дополнительных материалов, однако работу будет выполнять владелец или другой подрядчик.
Несущие стены в панельных домах
Расходники и инструменты
потребуются следующие инструменты
- Ножницы по металлу.
- Циркулярная пила с мелкими зубьями.
- Электролобзик.
- Ручная ножовка.
Главное, при резке металлических панелей не использовать углошлифовальную машинку.
Ее применение приводит к повреждению полимерного слоя, из-за чего элемент придет в негодность.
Комплектующие, без которых не удастся завершить строительство:
- Карниз, отливы и откосы, нащельники. Их использование является обязательным условием при строении зимнего сарая. Если сэкономить на покупке этих элементов, то это приведет к протеканию стыков, поддуванию швов, попаданию влаги внутрь здания, гниению пола.
- Стыковочные планки, внешние углы.
- Утеплители в виде монтажной пены, герметика и уплотняющей ленты. Швы панелей на базе ОСБ обязательно пропенивают. Стыки на металлических элементах закрывают уплотняющей лентой. Чтобы не допустить попаданию внутрь сарая холодного воздуха, применяют теплоизолирующие полосы. В местах состыковки кровельных панелей проходятся герметиком.
- Крепежи: самонарезающиеся шурупы с шайбами.
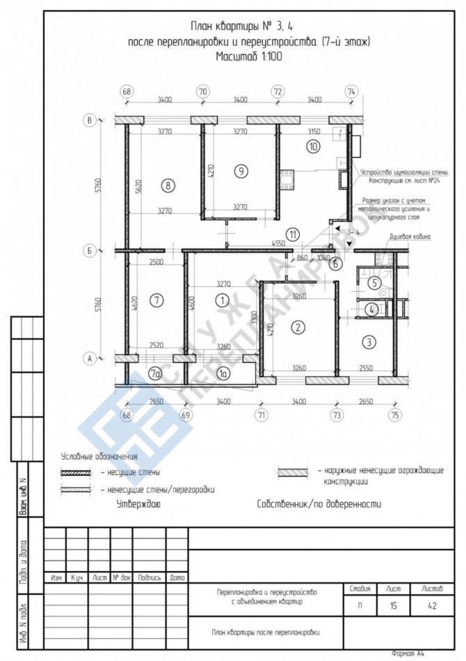
Перепланировка квартиры с демонтажем несущей стены
Иногда для возведения стен внутри квартиры используется гипсокартон, и тогда роль несущей конструкции выполняет колонна. В этом случае перепланировку можно осуществить довольно легко.
Если же, несущие стены обозначены в плане строения, то для их полного или же только частичного сноса необходимо согласовать предполагаемый проект в БТИ. Для проведения таких работ нужно обязательно получить соответствующие разрешения.
В случае если перепланировка предполагает демонтаж несущей стены, то ее можно разобрать только частично, поскольку в соответствии с техникой безопасности, нельзя лишать здание крепления. Бесконтрольный снос может повлечь за собой повреждения не только определенной жилплощади, но и всего дома. Поэтому на месте снесенного участка несущей стены должна быть установлена дополнительная опора, к примеру, в виде колон. В остальных случаях перепланировка квартиры, связанная с демонтажем несущих конструкций в доме, категорически запрещается.
Для того чтобы снести стенку с соблюдением всех существующих правил и нормативов нужно обратиться за помощью к профессионалам. Эксперты помогут правильно определить, какая из конструкций является несущей. А также произведут демонтаж, используя современные технологии и оборудование
Важно не только провести качественный ремонт в помещении, но и правильно распределить нагрузку общей конструкции монолитного дома, тем самым сохранив его крепость
Нормативно-правовая база
Линейные размеры жилых и подсобных помещений регулируются внушительным перечнем таких нормативных актов, как ГОСТы и СНиПы. В соответствии с ними осуществляется планировка типовых квартир. Любое изменение в расположении стен и перегородок должно быть согласовано в соответствующих инстанциях, первая из которых – БТИ.
Схема перепланировки маленькой ванной комнаты
Размещение сантехники в ванной комнате по СНиП
Далеко не всегда владелец типовой квартиры получает разрешение на реализацию планировки, необходимой для улучшения комфортабельности помещений
Это нужно учитывать при покупке жилья и в первую очередь обращать внимание на размеры ванной и санузла. Они отражены на плане квартиры, где также указано расположение инженерных коммуникаций
Кадастровый паспорт: образец
На картинки план квартиры
Согласно нормативам, минимальные размеры ванных комнат могут быть следующими:
- высота потолков не менее 2,5 м;
- ширина помещения не менее 0,8 м;
- глубина (длина) ванной комнаты не менее 1,2 м.
Размеры совмещенных санузлов имеют свою градацию: маленькие (198-173 см), средние (250х150 см), большие (290х200 см). Эти стандарты определены для «хрущевок» и панельных многоквартирных домов. Архитектурная планировка этих зданий может включать не полноценные ванные комнаты или совмещенные санузлы с установленными в них ваннами, а санузлы с душевыми кабинами. Стандартные размеры таких помещений 140х150 см.
Как посчитать площадь ванной комнаты
Проект ванной комнаты площадью 3,1 кв.м
Проект ванной комнаты площадью 3,3 кв.м
При правильной организации пространства, нестандартная планировка ванной комнаты очень удобна
Проект ванной комнаты площадью 4,6 кв.м
Проект ванной комнаты площадью 6,25 кв.м
Поскольку габариты ванных в типовых квартирах оставляют желать лучшего, непросто создать условия для комфортной эксплуатации этих комнат. Кроме того, необходимо учитывать рекомендованные нормативами расстояния между сантехоборудованием.
| Оборудование | Расстояния |
| От унитаза до биде | Не менее 35 см |
| От унитаза до стояка | Не более 20 см |
| От стены до душевой кабины | Не более 30 см |
| Свободное пространство перед унитазом | Не менее 60 см |
Размеры оборудования ванной комнаты
Оптимальные размеры для умывания и вытирания полотенцем
Минимальный показатель толщины кирпичных стен
Любая стена, внутренняя и внешняя, должна отвечать трем основным параметрам:
- Устойчивости, надежности и прочности. Именно толщина наружных стен и внутренних перегородок обеспечивает эти параметры.
- Долговечность всей конструкции – она зависит не только от ширины стены, но и от типа выбираемого материала. Так, силикатный кирпич достаточно быстро разрушается в условиях повышенной влажности. Тогда как именно стандартный обожженный кирпич из глины показывает в таких условиях длительный срок службы.
- Изоляционные свойства, как тепло-, так и звуко-. На этот параметр непосредственно влияет ширина несущей стеныи перегородок.
Исходя из этого, определена минимальная толщина несущей кирпичной стены, которая составляет — 1/20 или 1/25 от высоты этажа. Так, чаще всего в конструкции до 5 м высотой, используют минимальную несущую стену шириной всего лишь 25 см, что составляет кладку в 1 кирпич.
Долговечность всей конструкции зависит не только от ширины стены, но и от типа выбираемого материала.
Эргономика ванной комнаты
Для того чтобы эксплуатация ванной была комфортной и безопасной, нужно суметь правильно расположить мебель и сантехнику. В небольших помещениях сделать это непросто, поэтому рекомендуется предварительно выполнить все необходимые замеры.
Потребуется узнать расстояние от стен до точек подключения сантехоборудования и линейные размеры помещения. Все эти данные нужно внести в импровизированный чертежик. Далее выясняют габариты сантехники и мебели, которые планируют установить, и находят для них наиболее удобное местоположение.
Ванная комната входит в категорию помещений повышенной опасности. Это связано с регулярным использованием воды, вследствие чего образуется избыточная влажность воздуха, стен и пола. Это нужно учитывать и, если среди домочадцев есть люди с ограниченной способностью к самостоятельному передвижению, ванную необходимо оборудовать специальными поручнями.
Поручень над ванной
Поручни для ванной для инвалидов
Требования к уборным для инвалидов
Разместить вещи в небольших помещениях поможет антресоль. Ее сооружают под потолком в непосредственной близости от санузла. Для этого существуют рекомендованные нормы потолков вблизи санузлов: не менее 210 см.
Встроенная антресоль для ванной
Мебель для ванных комнат
Сносим стены при перепланировке что можно рушить, а что нет
Многие люди, особенно проживающие в хрущевках, стараются переделать свои маломерные и неудобные квартиры, используя перепланировку. Но одно дело – выполнить ее в индивидуальном строении, и совсем другое – изменить дверной проем или передвинуть перегородку в многоэтажке, где – практически каждая из стен несущая. Все это обеспечивает безопасность жильцов в сочетании со всей технической конструкцией дома.
Что же такое перепланировка? Согласно жилищному кодексу – это понятие включает в себя все изменения конфигурации квартиры, которые требуют внесения их в технический паспорт. Это:
- изменение расположения несущих стен и перегородок,
- перенос проемов окон и дверей,
- переоборудование тамбуров и темных кладовок,
- обустройство внутренних лестниц,
- переоборудование санузлов,
- разделение больших по площади комнат,
- расширением жилой площади за счет бытовых помещений,
- остекление балкона или лоджии,
- замена газовых плит на электрические,
- перенос ванной, кухни или туалета.
Все эти виды изменений в квартире относятся к перепланировке и требуют согласования в соответствующих органах.
То, что сносить нельзя: несущая стена
Чаще всего, перепланировка связана со сносом межкомнатных перегородок. А вот какие стены можно трогать, а какие нет – знают не все. Безрассудный снос конструкций приводит к изменению действия сил на оставшиеся поверхности и помещения расположенные ниже.
Кроме этого, оставшиеся без опоры потолочные перекрытия могут не выдерживать нагрузки и в любой момент рухнуть.
Так как, кроме разделения разных комнат, элементы стены служат в качестве опор потолочного перекрытия для всех выше расположенных, аналогичных конструктивных элементов.
Основные (несущие) стены на практике расположены перпендикулярно к балкам перекрытия. Если оно выполнено из бетонных плит, то их концы опираются на поверхность несущей конструкции. Обычно – это стены между квартирами и блоками, или наружные. Как правило, внутри квартиры обустроены только перегородки.
Как узнать какая стена несущая?
Можно ли назначение стены определить самостоятельно? Конечно. По ее толщине или материалу, из которого она возведена. В домах панельного типа внутренние блоки имеют толщину до 120 мм. Поэтому их можно считать перегородками (их толщина колеблется от 80-120 мм).
Несущая поверхность должна иметь толщину не менее 140 мм. Чаще всего в таких домах наружные стены выполнены толщиной от 200 мм. В домах из кирпича – наружные, несущие конструкции имеют толщину от 380 мм и более, межквартирные – 250 мм, а перегородки 120 или 80 мм.
В качестве материала для несущих стен в панельных домах чаще всего используют стеновые или межквартирные блоки, выполненные из железобетона с различными добавками для облегчения конструкции и увеличения теплозащиты. Внутренние перегородки в 90% панельных домов выполнены из гипсобетонных панелей. В кирпичных строениях основным материалом для всех стен является красный и силикатный кирпич, отличающийся размерами. В качестве перегородок в них также могут быть использованы гипсобетонные панели.
Сносить наружные стены, конечно же, никто не собирается, а вот перегородки убрать можно, получив соответствующее разрешение. Чтобы точно определить которая из стен несущая, лучше всего воспользоваться данными БТИ — детальным планом по этажам. Там более жирными линиями отмечены все капитальные стены, а перегородки, у которых нет таких функций, отмечены более тонкими линиями.
Что необходимо для сноса?
В любом случае, прежде чем приступать к работам по сносу той или иной стены и переносу ее, нужна консультация квалифицированного специалиста. А также полный расчет, учитывающий распределения нагрузок, которые должны быть перенесены со старых конструкций на вновь возводимые.
Кроме этого, возможно придется изменять схему электроснабжения. К тому же, надо иметь в виду, что несогласованный снос стен помещения, может помещать его продаже или оформлению документов дарения и пр. Но и это еще не все.
Такие действия считаются незаконными и влекут за собой штрафные санкции, вызовы в суд и даже могут привести к конфискации квартиры.
Поэтому согласование проекта перепланировки необходимо в любом случае. Что для этого надо?
- План, разработанный службой БТИ, конкретно на данный вид перепланировки.
- Составление технического заключения на снос стены.
- Получение положительного заключения жилищной инспекции по месту регистрации.
Вывести все материалы с меткой:
- строительные работы
- организационные вопросы
Как узнать несущая стена или нет в кирпичном доме?
Толщина кирпичной стены кратна размеру кирпича (120 мм.): 120 мм.+10 мм.(толщина вертикального шва раствора)+120 мм. и так далее.. Таким образом, кирпичные стены могут иметь следующие толщины: 120, 250, 380, 510, 640 мм. и т.д. +отделочные слои. Толщина несущей стены из кирпича начинается от 380 миллиметров и выше. В 90% кирпичных жилых домов внутренние межкомнатные перегородки выполнены из кирпича или гипсобетонных панелей толщиной 120 и 80 мм. соответственно, межквартирные- 250 мм. из кирпича и 200 мм. из двойных панелей с воздушным зазором. Несущая стена в кирпичном доме может иметь толщины 380, 510 и 640 мм.
Кирпичных домов, строящихся по сериям, намного меньше чем панельных, а потому найти их описание гораздо труднее. Однако большинство кирпичных домов столицы- это хрущёвки и сталинки с очень схожими конструктивными решениями. Рассмотрим их поподробней.
Несущие стены в хрущевке и сталинке.
Итак, какие стены несущие в хрущевке? Какие стены можно затрагивать при перепланировке хрущевки? Все типы жилых хрущёвок представляют собой конструктивную схему с тремя продольными несущими стенами (выделены зелёным) и поперечными стенами-диафрагмами жесткости (выделены синим), которые обеспечивают устойчивость продольных несущих стен (не дают им опрокидываться). Поперечные стены лестничной клетки (выделены голубым ) не только обеспечивают устойчивость продольных несущих стен, но и служат опорой для лестничных маршей, т.е. тоже являются несущими.
Междуэтажные плиты перекрытий опираются либо непосредственно на продольные несущие стены:
Либо на железобетонные поперечные стены и балки прямоугольного сечения (обычно 200х600(h) мм.), которые в свою очередь опираются на продольные несущие стены:
В последнем варианте, а он встречается чаще чем первый, поперечные стены выступают уже не только как диафрагмы жесткости, но и как несущие, так как на них опираются междуэтажные перекрытия.Направление укладки плит бывает видно по рустам (стыкам плит).Обычно под железобетонными балками,чтобы они не бросались в глаза, установлены межквартирные и межкомнатные перегородки.
Планировки квартир, количество комнат, шаг балок и т.д. могут быть самыми различными, но сама конструктивная схема не меняется.
Всё что было сказано выше о хрущёвках, относится и к сталинкам . В сталинках преобладает такая же конструктивная схема с тремя продольными несущими стенами, однако они имеют бОльшую архитектурную выразительность и как следствие более сложные конструктивные схемы лестничных и лифтовых узлов, повороты стен.
Ниже приведены планы квартир в хрущёвках и сталинках с указанием несущих стен и конструкций: 1.
Иногда вместо части внутренней стены (чаще в сталинках) устанавливают кирпичные столбы (колонны), на которые опираются железобетонные балки:
Как видно из представленных материалов в сталинках и хрущёвках довольно часто все внутренние стены являются не несущими перегородками, что очень удобно для перепланировки и полёта дизайнерской мысли.
Декоративные возможности
Покупая пластиковые панели, обратите внимание, чтобы они были ровными, не имели волн, вмятин, перепадов. Желательно, чтобы они были из одной партии и не отличались по окраске, оттенку
Качество выполнения монтажа будет только при использовании ровных плит: без перекосов, сдвигов и с невидимыми стыками.
Обратите внимание на наличие сертификатов санитарно-гигиенической безопасности, соответствие продукта техническим условиям и ГОСТ. Монтаж панелей ПВХ вы можете посмотреть ниже
Монтаж панелей ПВХ вы можете посмотреть ниже.
Способы определения несущих стен
Существует несколько способов, как определить, несущая стена или нет в доме. Точный и легко выполнимый — это изучение конструктивного плана дома. Данный документ находится в управлении капитального строительства. Также не стоит забывать о существовании технического паспорта. Если хозяин квартиры умеет читать строительные чертежи, определить несущую стену в доме ему не составит особого труда.
Несущие стены часто определяют по толщине и расположению. Измеряя толщину стены, предварительно необходимо снять обои, очистить поверхность от старой штукатурки. Только после этого можно начинать измерения. Параметры несущих стен у всех домов разные, например:
- Несущие стены в кирпичном доме толще тридцати восьми сантиметров. Чем больше выложено кирпичей, тем больше толщина.
- В панельных домах немного другая ситуация. Здесь все стены, превышающие показатель четырнадцать сантиметров, несущие. В таком доме сделать перепланировку сложно и практически невозможно. Ведь большинство стен в панельном доме несущие.
- В монолитных домах стены толще двадцати сантиметров несущие. В домах определить несущую стену по толщине достаточно трудно. Поэтому проще взять у застройщика общий план этажа.
Все наружные стены составляют основу здания, являясь опорными.
Какой должна быть характеристика?
Проектные организации рекомендуют с учетом среднестатистических характеристик керамзитобетона следующие толщины:
- Одноэтажные дома для сезонного проживания от 200 мм до 300 мм с применением М150.
- Фундамент, цоколь и несущие конструкции от 400 до 600 с применением М300.
- Легкие стены от 350-400 мм с применением М200.
- Внутренние перегородки от 200 мм с применением М200 М(50,75) и самостоятельный слой теплоизоляции фасада.
В зависимости от места расположения
Для всесезонных жилых домов применяют полнотелые и пустотелые керамзитобетонные блоки с разным процентом пустотности. Ширина стен будет зависеть от того, где она расположена и нагрузки, которую должна вынести. Минимальная толщина внешних конструкций установлена 400 мм с перевязкой вертикальных швов не меньше 100 мм.
Пустотелые камни обладают повышенными теплоизоляционными характеристиками и прочностными показателями, они могут использоваться в качестве перегородочных конструкций и несущих стен низкоэтажных объектов.
Снаружи здания
Это самые ответственные конструкции, поскольку должны равномерно передать как собственную нагрузку на основу дома, так и от кровельной системы с перекрытием. Минимальный размер для таких элементов – 400 мм, позволяет устанавливать в качестве перекрытия железобетонные плиты.
Для того, чтобы у застройщика не было сомнений в правильности выбранной толщины, также потребуется обратить внимание на плотность элементов. Чем она выше, тем выше прочность и устойчивость конструкции к влаге
Плотность обозначается буквой D, имеет показатели для таких блоков от 400 до 2000 кг/м3.
Для внешних стен могут применяться блоки конструкционного типа с плотностью от D1100/D1800 с показателями М100/М500 и показателем по морозостойкости не ниже F50, а для северных районов выше F75. В этом случае несущие конструкции смогут вынести приличные нагрузки и потребуют дополнительный слой теплозащиты не менее 100 мм.
Внутри помещений
Для этого назначения стены, как правило, не требуется теплозащита. Они также могут быть несущими и ненесущими. При выборе ширины такого элемента главным является возможность нести нагрузку от установленных выше строительных конструкций. Небольшая масса элементов до 8 кг улучшает строительный процесс и гарантирует надежность конструкции при толщине от 200 до 400 мм.
По назначению стеновых конструкций
По этому классификатору толщину стен выбирают в зависимости от функции, которую она несет в доме. Они могут подразделяться на несущие внутренние и внешние, ненесущие внутренние и перегородки
Несущая
Это самая массивная конструкция и имеет минимальный показатель по ширине от 400 до 600 мм. В первом случае она идет с дополнительной теплоизоляцией, а во втором – без. Такой размер определяется условием эксплуатации, поскольку несущая конструкция обязана передать нагрузку на основу дома от собственного веса и системы перекрытий.
Ненесущая перегородка
Внутренние ненесущие стены выполняются из перегородочных блоков и имеют толщину до 200 мм. Для их усиления иногда предусматривают монтаж армопояса, который располагают между верхними блоками и потолочным перекрытием, для того чтобы обеспечить равномерное распределение нагрузки.
Такой размер позволяет сделать их легко возводимыми и не создающими дополнительного веса на перекрытие и фундамент. Облегченные перегородки снижают общую цену строительства и не занимают полезную площадь помещений.
При этом такого размера достаточно, чтобы конструкция имела расчетную прочность для будущего закрепления на ней элементов отделки и интерьера. Способность керамзитобетона быть огнестойким и звукозащитным позволяет использовать его в качестве стеновых конструкций жилых зданий.
По типу здания
Выбор толщины стен во многом зависит от типа строительного объекта: жилой, хозяйственный, промышленный или для обслуживания придомовых помещений.
Дом
Керамзитобетонные блоки очень популярны для возведения частных жилых домов до 3-х этажей. Очень недорогой стеновой материала с шириной блоков в зависимости от производителя от 19 до 45 см. Наиболее распространенная ширина стен для домов из этого материала по СНиП считается 380 мм, другими словами, укладка производится в 2 блока наименьшей ширины. Для такого варианта в обязательном порядке предусматривается внешняя теплозащита и кирпичная облицовка.
Баня
Стены бани не нуждаются в повышенной прочности, достаточно будет применения пустотелых блоков, которые также способны обеспечить повышенную теплозащиту. Для простейшего варианта в плане 6х4 м, наружные стены применяют в полблока 300 мм, в перевязку. Для защиты от атмосферной влаги применяется обыкновенная цементная штукатурка.
DOM.RIA – Виды стен и какой должна быть их толщина
Как при строительстве частного дома, так и при выборе квартиры в новостройке важно понимать, что значат те или иные цифры – в том числе речь о виде конструкций и их толщине. Во время проектирования собственного жилья, понимая необходимые параметры, вы убедитесь в правильности своих действий. Выбирая квартиру в новостройке, понимая какие должны быть стены, вы сможете самостоятельно оценить качество предлагаемой недвижимости.
Виды конструкции стен
Вне зависимости от этажности и назначения дома стены бывают трех типов:
- несущие. Стены, которые принимают нагрузку опор перекрытий верхних этажей и крыши, и передают ее фундаменты. Их перемещение невозможно, они имеют наибольшую толщину;
- самонесущие. Такие стены опираются на фундамент строения, но несут нагрузку только собственной массы;
- ненесущие. Это стены внутри помещений, которые опираются на другие элементы строительного каркаса. Они несут только свой вес и имеют наименьшую толщину.
Рассмотрим подробнее каждый из видов.
Несущие стены – что это
Несущая стена – это стена, на которую опираются элементы, расположенные на верхних этажах многоквартирного жилого дома. Она берет на себя нагрузку балок, плит, обычных перегородок и балконов, удерживая целостность всей конструкции от крыши до фундамента.
При строительстве собственного дома необходимо учитывать множество факторов, кроме видов конструкций, еще важен тип нагрузки, которой подвергаются несущие стены. Так, несущие стены делятся на внутренние и внешние, и подвергаются таким нагрузкам:
- вертикальные;
- горизонтальные.
Вертикальные нагрузки обусловлены сжатием конструкции под весом самой стены и перекрытий, а также эксплуатационных нагрузок. А горизонтальными нагрузками считается передающийся распор от стропильной конструкции и воздействие ветра. При возрастании толщины стены увеличивается диапазон допустимых нагрузок конструкции.
Как проверить законность строительства
Уменьшать толщину несущих стен или выбирать материал худшего качества – не самая лучшая идея при строительстве загородного дома или новостройки. Некоторые недобросовестные застройщики могут пользоваться таким приемом для удешевления строительства. Но в дальнейшем плохое качество несущих стен повлияет не только на микроклимат в жилых помещениях, но и на устойчивость всего здания. В таком ракурсе экономия того не стоит.
Самонесущие стены – что это
Самонесущая – стена здания или сооружения, выполняющая ограждающие функции и не несущая вертикальных нагрузок, кроме собственного веса.
Подобные стены должны быть толщиной от 50 до 300 мм в зависимости от материала и соответствия толщины к высоте. Самонесущие – экономичные конструкции, так как материала для их возведения требуется не так уж и много. В отличие от предыдущего типа, самонесущие стены можно демонтировать, возводить и расширять в них проемы без какого-либо риска для здания.
Ненесущие стены – что это
Ненесущая – стена, не воспринимающая нагрузки и не оказывающая влияния на общую устойчивость здания.
Такие стены опираются на перекрытие в пределах одного этажа, если он не выше шести метров. Если он не вписывается в указанную высоту, стена считается самонесущей.
Как мы можем видеть, несущие стены – одна из самых важных частей зданий, остановимся более подробно: какие материалы используются при их возведении и какие нормативы действуют в Украине.
Материалы для строительства несущих стен
Сегодня на строительном рынке представлено достаточно видов строительных материалов, которые используются для строительства одноэтажных домов, таунхаусов, коттеджей или многоэтажных новостроек. При возведении несущих стен в высотных жилых комплексах наибольшей популярностью пользуются бетонные конструкции, которые отличаются прочностью и достаточными теплоизоляционными характеристиками. Дополнительно, а также в низкоэтажном строительстве, могут использоваться такие материалы:
Внутренние несущие стены дополнительно покрывают только отделочными материалами. А вот внешние дополнительно укрепляют и изолируют другими материалами. Например, керамзитобетоном с жилой стороны, а со стороны улицы – утеплителем и облицовочной плиткой.
При расчете толщины несущей стены учитывается коэффициент теплопроводности каждого из материалов. Этот параметр влияет на эксплуатационные характеристики стены, а также на размер платежной квитанции в отопительный период.
Нормативные данные для несущих стен
В государственных строительных нормах Украины 2.6-31-2016 утверждается, что толщина блока для несущих стен должна соответствовать требованиям по коэффициенту сопротивления теплопередачи ограждающих конструкций (R). Коэффициент для наружных стен составляет 3,3 кв. м*К/Вт (для 1-й зоны) и 2,8 кв. м*К/Вт (для 2-й зоны). Для расчета используют формулу:
R=d/k, где
- R – коэффициент сопротивления теплопередачи;
- d – толщина материала (м);
- k – коэффициент теплопроводности Вт/(м*К).
Ко второй температурной зоне Украины относятся Одесская, Николаевская, Херсонская, Запорожская области и АР Крым. Все остальные регионы относятся к первой температурной зоне.
Толщина несущих стен
Толщина стен должна измеряться без учета отделки, поэтому проводить замеры необходимо до работ по нанесению штукатурки и прочего. Рассмотрим, какой должна быть толщина стены несущей стены из различных материалов.
Несущая стена из кирпича
Половина длины красного кирпича – 12 см. Это стандарт, на который ориентируются строители, ему должна быть кратна толщина стены. Внешние несущие стены выполняются в полтора кирпича и более, т.е. с толщиной от 38 см (12+24 ширина кирпича + 2 см шва между ними). При должном утеплении толщину можно снизить до 25 см (в один кирпич+ шов между ними в 1 см), но не меньше. А вот для межквартирных стен 25 см – отличная толщина.
Несущая стена из газоблока
В 1 температурной зоне Украины согласно расчетам ГСН толщина кладки без наружного утеплителя должна достигать 45 см. Поэтому крайне важно обратить внимание, чтобы он максимально соответствовал требованиям.
Несущая стена из бруса
Точный расчет производится по нормам температурных зон регионов, но деревянные брусы шире 22 см – редкость. Так что если согласно ГСН требуемая толщина стены должна составлять от 40 см, это будет сложно осуществимо. Придется заранее просчитывать дополнительное утепление изнутри или снаружи.
Несущая стена из панели
В домах из панели несущие стены должны быть толще 14 см, но этого с учетом украинских климатических зон часто недостаточно. Именно поэтому квартиры в панельных домах так часто нуждаются в утеплении. Межкомнатные перегородки могут быть и вовсе 10 см, так что при покупке квартиры в такой новостройке, стоит заранее продумать звукоизоляцию.
Другие показатели
В соответствиями с требованиями СНиП 23-01-99, которые касаются климатических особенностей региона, при вычислениях обращают внимание на температурные показатели. Пример с данными величинами можно посмотреть в разделе выше
Указанный СНиП содержит таблицу № 1. В ней идет перечень всех населенных пунктов РФ по областям со среднегодовой температурой. Указанные показатели на пересечении точно определяют количество дней с низкими температурами в течение года.
Определение градусо-суток для всего отопительного сезона, с тем, чтобы вычислить требуемую толщину стены вместе с утеплителем, относится к дополнительным расчетам. В СНиПе 23-02-2003 указана формула, которая помогает определить нужный нам показатель.
Толщина S определяется так:
Например, панели ячеистого бетона имеют R (коэффициент теплопроводности) до 0,14 (Вт/м х °С). Норма требуемой толщины стеновой конструкции, по региону должна быть равна 3,2.
Перемножаем значения между собой, получаем 0,14 х 3,2 = 0,45 (м). То есть, с учетом климатических особенностей по региону, ее толщина по стандарту должна составлять не меньше 45 (см). Именно такой слой поможет защитить помещение от промерзания в самое холодное время года.
Что это такое?
Стандартные керамзитобетонные панели имеют прямоугольную форму, сероватый цвет и шероховатую поверхность. Внешне плиты очень напоминают железобетонные, но, в сравнении с ними, являются более легкими.
Блочная конструкция панелей имеет следующие стандартные размеры:
- длину – 30-720 (см);
- высоту – 30-810 (см).
Изделия относятся к легким бетонам, и считаются экологически чистыми, благодаря своему составу, состоящему из:
- цемента определенной марки (М50-М150);
- керамзитового или кварцевого просеянного песка;
- обожженной углеродистой гранулированной глины;
- проточной воды;
- добавок, улучшающих сцепляющие свойства (например, битумной эмульсии, алюминиевой пудры, извести, гипса и т.д.).
Получают панели неавтоклавным способом, путем смешивания, вспенивания и трамбовки составных компонентов, и заливки смеси в формы.
Бетонный материал выпускается в виде:
- конструкционных;
- теплоизоляционно-конструкционных;
- теплоизоляционных разновидностей.
Первые используются для возведения несущих стен, а вторые – для перегородочных (межкомнатных).
Главной особенностью стеновой керамзитоблочной конструкции является малый вес и равномерное распределение нагрузки по периметру возводимого здания. При этом нагрузка на фундамент оказывается на 30% меньше, чем у ЖБ-изделий.
Конструкция панели из керамзитобетона состоит из 1-3 слоев:
- один сплошной слой состава (самый распространенный тип плиты) предназначается для сплошной конструкционной стены или дополнительной теплоизоляции;
- 2 слоя представлены наружной (несущей) и внутренней (теплоизоляционной) частью, и подходят для теплоизоляционно-конструкционной стены;
- 3 слоя могут включать в себя: наружный ЖБ-слой, утепляющий и керамзитобетонный (зависимости от назначения стены, его могут применять, как к наружным стенам, так и к перегородкам). Трехслойные – это когда к двухслойной плите добавлен слой стекловаты, пенопласта или пеностекла.
Внутри панели присутствует продольная и поперечная арматура, что обеспечивает материалу максимальную прочность. Толщина стенового изделия составляет – 400-600 (мм).
Требования по нормативам
Основные требования к керамзитобетонным панелям описаны в ГОСТах:
- 32488-2013 (наружные панели);
- 12504-2015(внутренние изделия);
- 25820-2014;
Также нормативы устанавливаются в ряде других документах:
- ГОСТ 4.212 – требования к качеству выпускаемой бетонной продукции, применяемой в строительстве;
- ГОСТ 6133 – технические условия использования искусственных камней;
- ГОСТ 10181 – испытания бетонных смесей;
- ГОСТ 12730.0 – общие требования ко всем бетонам;
- ГОСТ 30459 – добавки для бетонов;
- ГОСТ 32496 – заполнители для легких бетонов и т.д.
Кроме того, в строительстве для всех изделий из керамзитобетона применяют нормативы:
- ГОСТ 32488-2013 – о наружных стенах;
- СНиП 23-02-2003 – о тепловой защите;
- СТО 501-52-01-2007– о проектировании бетонных конструкций;
- СТО-НО «СПКиК» — 001-2015 – о строениях из керамзитобетонов.
Панельный материал обладает рядом полезных характеристик и качеств, которые по структуре могут делить его на плотный, поризованный и крупнопористый.
Перегородки
Перегородки подвергаются силовым воздействиям от собственной массы в пределах одного этажа, незначительным случайным силовым воздействиям в процессе эксплуатации (при передвижке мебели, оборудования и т. п.), несиловым акустическим воздействиям. Конструкции перегородок в соответствии со степенью огнестойкости здания проектируют с пределом огнестойкости 0,5-0,25 ч из несгораемых или трудносгораемых материалов.
Такой невысокий уровень нормативных требований к огнестойкости перегородок связан с тем, что их повреждения при пожаре обычно носят локальный характер и не могут повлиять на сохранность несущих конструкций здания.
Невысокие нормативные требования к прочности и огнестойкости перегородок позволяют выполнять их из более широкого ассортимента материалов, чем внутренние стены.
Конструкции перегородок проектируют в зависимости от степени огнестойкости сооружения из кирпича, камня, бетона, гипсобетона, дерева и других небетонных материалов. Звукоизоляционную способность перегородок обеспечивают по принципу акустически однородных или раздельных конструкций в зависимости от избранного материала ограждающей конструкции. Наименее индустриальна конструкция перегородки в виде тонкой стенки, возводимой вручную из кирпича или мелких плит, наиболее индустриальна панельная, однорядной разрезки. Перегородки из мелкоразменных изделий устарели и даже в домах с кирпичными стенами уступают место панельным. В крупноблочных и панельных зданиях перегородки выполняют из панелей однорядной разрезки (глухих или с проемами) размером на комнату. Панели перегородок формуют из тяжелого или легкого бетона толщиной не менее 60 мм или из гипсобетона толщиной не менее 80 мм. Межквартирные перегородки, как правило, проектируют акустически раздельными, двойными с воздушным зазором между панелями не менее 40 мм. Конструкции панелей перегородок и детали их крепления показаны на рис. 10.
Перегородки из небетонных материалов (рис. 11) проектируют, как правило, слоистыми в виде каркасных или бескаркасных (клееных) конструкций панельного типа или поэлементной сборки. Каркас таких перегородок выполняют из дощатых реек, алюминиевых или тонкостенных стальных оцинкованных стержней прямоугольного трубчатого или швеллерного сечения с двухсторонней обшивкой гипсовой сухой штукатуркой и заполнением полости минерало- или стекловатными материалами. Перегородки монтируют по направляющим из металлических или деревянных реек, пристрелянных дюбелями к полу и потолку. Вертикальные стыки перегородочных панелей осуществляют в шпунт на прокладные рейки, входящие в пазы вертикальных обвязок. Панели перегородок изготавливают высотой в этаж с основным размером по ширине 1,2 м и доборными элементами шириной 0,6 и 0,3 м.
В зданиях с трансформируемой в процессе эксплуатации планировкой применяют раздвижные перегородки. В зависимости от используемого материала применяют мягкую гармончатую или жесткую складчатую конструкцию (рис. 12) раздвижной перегородки.
Рис. 10. Перегородки из гипсобетонных панелейа- общий вид панели; б — примыкание к потолку; в — примыкание к полу; 1 — подъемная петля; 2 — деревянный реечный каркас; 3 — дверной блок; 4- нижняя деревянная обвязка (опорный брус); 5 — металлический хомут для стыкования с перекрытием
Рис. 11. Панельные перегородки из небетонных материалова — примыкание к потолку; 6 — примыкание к полу; в — примыкание к стене; г — примыкание к дверной коробке; д — вертикальный стык; 1 — каркас; 2 — обшивка; 3 — звукоизоляционный слой; 4 — плинтус; 5 — обвязка; 6 — стыковая рейка
Виды по размерным характеристикам
ЖБ стеновые панели выпускаются с разнообразной конфигурацией и габаритами. Выбор типа и размеров бетонных плит для строительства объекта выполняется в процессе проектирования из типовых модификаций.
В большинстве случаев типовые панели выпускаются со стандартными размерами для жилых объектов — 12*1,8 м и 6*1,2 м, а для промышленных объектов принимаются панели соответственно — 6.9 и 12 м. Для стенок, имеющих проемы используют изделия по длине от 1.5 до 3.0 м, а для проемов дверей — от 1.48 до 2.98 м.
Все плиты маркируются на заводе по ГОСТ несмываемой краской, которая наносит специальный код на ребра.
Код состоит из 3-х цифр и литер, разделенных дефисом:
- Первые цифры указывают на метод производства, например, от 1 до 3 относятся к монолитным конструкциям, а от 4 до 6 к составным.
- Первый буквенный символ обозначает области применения «Н» или «В» установки снаружи или внутри.
- Далее идет обозначение места установки «С»/»Ц»/»Ч», что означает — стена/цоколь/чердак.
- Следом идет указание размеров, при этом ширина обозначается в см, а длина панели — в дц.
Кроме того, в маркировке указывается вид бетона, конструктивная особенность прямая или зеркальная и номер расположения закладных элементов.
Из легких бетонов
Усредненная плотность исходного бетона в сухом состоянии не должна быть ниже 900 и не может превышать 1300 кгс/м3. Они обладают внешней и внутренней фактурной отделкой из смеси цемента и песка.
Кроме того, по серии 1.432 — 11 выпускаются длинномерные изделия 12м для стеновых конструкций промышленных зданий с системами отопления с двухсторонними отделочными слоями из раствора, полученного с композицией цемента и песка.
Легкобетонные стены 1.433 — 2 также для производственных зданий в которых может возникать агрессивная воздушная среда и влажные условия эксплуатации до 80%.
Стеновые наружные для дома
Однослойные неразрезные панели по РЧ No08/11-11024-ЭКБ применяются при возведении объектов до 18 этажей. Габариты панели: 6,8 х2,740 х0.480 м. Стены производятся в щитовой опалубке, обладают оконными и дверными проемами и выпускаются на основе перлитобетона.
Для перегородок
Каждый дом, от индивидуального до многоквартирного, имеет внутренние перегородки, которые выпускаются в виде крупногабаритных плит с размерами соответствующим высоте этажа и длиной 6 м.
Стеновые по серии 3.902
Стеновые панели 3.902.1-12 также армируются сварными сетками с защитным слоем бетона не менее 30 мм. Часто в соответствии с дополнительным заказом застройщика наносят холодную битумную гидроизоляцию на все плоскости панелей.
Аналогично возможно производство панелей с особыми условиями по бетонным смесям, например, использовать сульфатостойкий портландцемент.
Дорожные железобетонные
Большинство заводов ЖБИ производят не только стеновые панели, но и плиты перекрытия и железобетонные дорожные плиты. Последние используют высокопрочный бетон (В25, В30).
Модификации, которые производятся способом вибролитья либо вибропрессования:
- 50*50;
- 1000*1000*100;
- 500*500*50;
- 1000*500*50.
Последующий этап производства — пропарка форм до завершения кристаллизации бетонированной смеси. В состав может добавляться краситель, который не выгорает от ультрафиолетовых лучей и не вымывается атмосферными осадками.
Такие железобетонные плиты обладают преимуществами:
- высокие показатели ЖБИ по прочности и износостойкости;
- продолжительный период использования при стабильных высоких нагрузках;
- эстетическое оформление;
- несложность установки, возможность проведения ремонта и обслуживания;
- теплостойкость и экологическая безопасность.
Какие стены можно сносить в панельном доме.
В любом случае, прежде чем приступать к работам по сносу той или иной стены и переносу ее, нужна консультация квалифицированного специалиста. А также полный расчет, учитывающий распределения нагрузок, которые должны быть перенесены со старых конструкций на вновь возводимые. Кроме этого, возможно придется изменять схему электроснабжения.
Поэтому согласование проекта перепланировки необходимо в любом случае. Что для этого надо?
- План, разработанный службой БТИ, конкретно на данный вид перепланировки.
- Составление технического заключения на снос стены.
- Получение положительного заключения жилищной инспекции по месту регистрации.
Хрущевки строились по типовым проектам. Конструкция их состоит из трех продольных несущих стен и поперечных перегородок.
Так как малосемейки имеют небольшую площадь, у владельцев часто возникает желание удалить стену между кухней и комнатой. Нужно на всякий случай измерить толщину этой стены и убедиться, что она является перегородкой.
Как правильно сделать замер
Прежде чем приступать к самостоятельным замерам поперечного сечения стены необходимо подготовить набор инструментов:
- Рулетка. Основной инструмент, без которого определение размеров невозможно.
- Отвертка плоская. Необходима для снятия наличников с дверного, оконного полотна.
- Стамеска. Пригодится, если наличники усажены на клей и держатся крепко. Рекомендуется аккуратно поддеть наличник, сорвать его с места.
Чтобы достичь наибольшей точности, избежать повреждений дверных, оконных полотен, рекомендуется использовать приборы, измеряющие толщину стен без нарушения их структуры. К данной категории относятся:
- Толщиномер. Определяет толщину путем прикладывания прибора к поверхности.
- Сканер армирования. Сканирует стену и определяет наличие арматуры, диаметр сечения арматурного прута, габариты.
Второй вариант используется при измерении внутренних, ограждающих конструкций. При этом выполняются следующие действия:
- Со стороны замочной скважины, производится съем наличников с обеих сторон. Если наличники зафиксированы на клей, то их можно поддеть, используя широкую стамеску.
- Зафиксировав начало рулетки с противоположной стены, определяется толщина измеряемого элемента.
Как провести замер наружной стены:
- Проводим замер внутри помещения от необходимой панели до оконного или дверного проема.
- Замеряем расстояние от внешнего угла здания до оконного проема.
- Наружные показатели прибавляем к внутренним.
Стандартная длина, ширина и толщина кирпича
Толщина перегородки из кирпича будет зависеть от такого показателя, как габариты используемого материала. Обычно они стандартны, но отличающиеся способы кладки приводят к изменению размера перегородки.
Встречаются другие размеры, отличающиеся по высоте, но этот параметр никак не влияет на габариты перегородки. Строители выделяют несколько вариантов:
- кладка в 0,5 кирпича – стена толщиной 12 см;
- кладка в 1 кирпич – толщина 25 см;
- кладка в 1,5 кирпича – 38 см;
- кладка в 2 кирпича – 51 см.
При выборе основного материала для строительства учитывают, для чего будет использоваться постройка, а также где она расположится.

















